Services

From strategy to delivery, our experts support complex challenges across the entire lifecycle of a project.

  • Environment
  • Engineering
  • Planning Consultancy
  • Safety
  • Sustainability Consulting
  • Net Zero and Decarbonisation
Arboriculture & Forestry Consultancy Services
Acoustics, Noise & Vibration Consultants
Air Quality
Archaeology & Heritage
Contaminated Land & Remediation
Ecology & Biodiversity
Environmental Impact Assessment
Construction Environmental Management
Environmental Permitting
Flood Risk
Glint & Glare
Hydrology & Hydrogeology
Landscape & Visual
Soils & Peat
Waste
Explore Environment
Civil Engineering
Structural Engineering
Geotechnical Engineering
Temporary & Enabling Works
Process Engineering
Energy Engineering
Energy Analysis
Environmental Engineering
Water & Wastewater
Surveying
Asset Integrity
Explore Engineering
Planning Consultancy
Transport Planning
Explore Planning Consultancy
Process Safety Consultants
COMAH Compliance Consultants
DSEAR & ATEX Compliance Services
HAZOP Consultancy
Machinery Safety
Process Safety Training Consultants
Health & Safety
Occupational Hygiene Consultants
Construction Design & Management (CDM)
Explore Safety
Energy Compliance
Environmental, Health & Safety (EHS) Legal Compliance Management
ISO Management Systems Services
Sustainability Strategy, Reporting and Verification
Environmental, Social, Governance (ESG)
Sustainability Programme Delivery Support
Sustainability Skills and Training
Explore Sustainability Consulting
Product Carbon Footprint Consultants
Buildings & Infrastructure Carbon Footprint & Reduction
Net Zero Strategy & Climate Transition Plans
Carbon Verification & Assurance
Energy Generation Feasibility Design
Industrial & Commercial Energy Solutions
Public Sector Decarbonisation Solutions
Net Zero and Decarbonisation Training
Carbon Footprint & Reporting
Explore Net Zero and Decarbonisation

hello@arthian.com

+44 (0) 3301 200 151

  • Office Locations
  • Resources
  • Services
    • Public Sector
  • Sectors
  • Projects
  • About Us
  • Training
  • Careers
  • Insights
  • Contact Us

Services

  • Environment
  • Engineering
  • Planning Consultancy
  • Safety
  • Sustainability Consulting
  • Net Zero and Decarbonisation

Environment

  • Arboriculture & Forestry Consultancy Services
  • Acoustics, Noise & Vibration Consultants
  • Air Quality
  • Archaeology & Heritage
  • Contaminated Land & Remediation
  • Ecology & Biodiversity
  • Environmental Impact Assessment
  • Construction Environmental Management
  • Environmental Permitting
  • Flood Risk
  • Glint & Glare
  • Hydrology & Hydrogeology
  • Landscape & Visual
  • Soils & Peat
  • Waste

Engineering

  • Civil Engineering
  • Structural Engineering
  • Geotechnical Engineering
  • Temporary & Enabling Works
  • Process Engineering
  • Energy Engineering
  • Energy Analysis
  • Environmental Engineering
  • Water & Wastewater
  • Surveying
  • Asset Integrity

Planning Consultancy

  • Planning Consultancy
  • Transport Planning

Safety

  • Health & Safety
  • Occupational Hygiene Consultants
  • Construction Design & Management (CDM)
  • Process Safety Consultants
  • Process Safety Training Consultants
  • COMAH Compliance Consultants
  • DSEAR & ATEX Compliance Services
  • HAZOP Consultancy
  • Machinery Safety

Sustainability Consulting

  • Energy Compliance
  • Environmental, Health & Safety (EHS) Legal Compliance Management
  • ISO Management Systems Services
  • Sustainability Strategy, Reporting and Verification
  • Environmental, Social, Governance (ESG)
  • Sustainability Programme Delivery Support
  • Sustainability Skills and Training

Net Zero and Decarbonisation

  • Public Sector Decarbonisation Solutions
  • Industrial & Commercial Energy Solutions
  • Energy Generation Feasibility Design
  • Net Zero Strategy & Climate Transition Plans
  • Carbon Footprint & Reporting
  • Buildings & Infrastructure Carbon Footprint & Reduction
  • Carbon Verification & Assurance
  • Net Zero and Decarbonisation Training
  • Product Carbon Footprint Consultants
  • Services
    • Public Sector
  • Sectors
  • Projects
  • About Us
  • Training
  • Careers
  • Insights
  • Contact Us

  • Office Locations
  • Resources

hello@arthian.com

+44 (0) 3301 200 151

COMAH – Secondary and Tertiary Containment
Home | Services | Environmental Engineering | COMAH – Secondary and Tertiary Containment

COMAH – Secondary and Tertiary Containment

Arthian’s consultants provide COMAH secondary and tertiary containment solutions to control spills, protect the environment, and meet regulatory requirements. Our expertise supports operators in designing compliant containment systems for tanks, bunds, and process areas.

View All Environmental Engineering Services
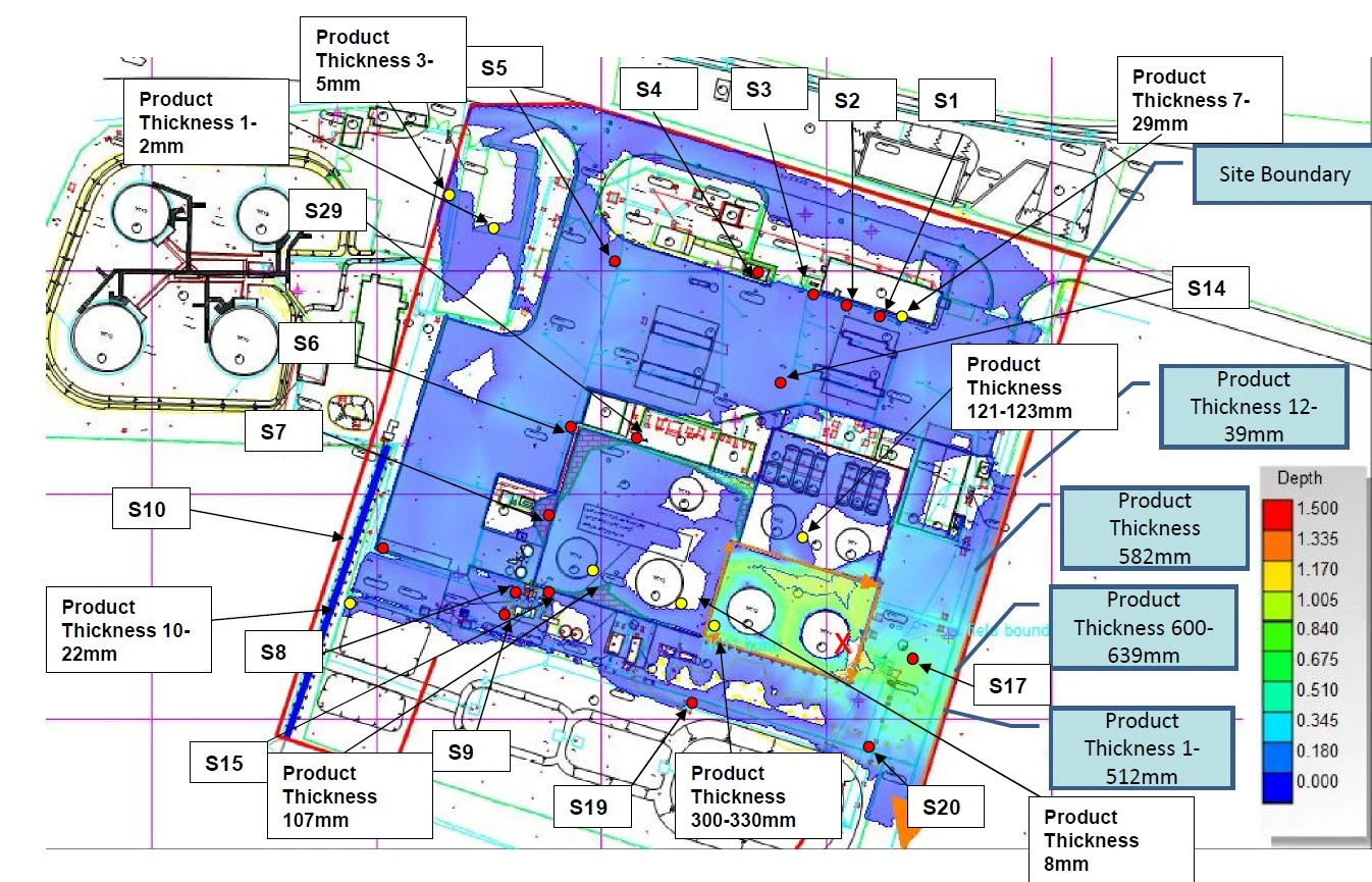
COMAH OBRA

COMAH Containment & Firewater Modelling | Bund Overtopping & Hydraulic Risk

Arthian delivers advanced modelling and containment assessments to support COMAH compliance across Upper and Lower Tier sites. Our team combines process safety, structural engineering, and environmental risk expertise to simulate firewater runoff, bund overtopping, and loss of containment scenarios—ensuring risks are understood, mitigated and documented to a level that is As Low As Reasonably Practicable (ALARP).
 
We support:

     

  • Distilleries and drinks manufacturing
  • Chemical and pharmaceutical facilities
  • Energy from waste and renewables
  • Industrial gases, fuels and bulk storage
  • High-risk manufacturing and processing sites

Our Modelling and Containment Services

Whether you’re preparing a COMAH Safety Report, responding to inspection findings, or planning infrastructure upgrades, our modelling helps you make informed, regulator-aligned decisions. We also support bund inspection programmes, firewater containment planning, and emergency response strategy development.

Hydraulic & Structural Modelling

We simulate firewater runoff and overland flow to understand how liquids behave during emergency scenarios. Our team assesses bund overtopping risks and evaluates tertiary containment capacity to prevent environmental release. We model catastrophic tank failure scenarios to quantify potential impacts and inform mitigation strategies. Hydrodynamic analysis is used to test bund strength and wave loading under extreme conditions. For critical infrastructure, we apply non-linear, dynamic time history analysis to assess the structural resilience of bund walls and tank foundations.

Containment System Design & Assessment
Integration with COMAH Safety Reports
Environmental Risk Assessment (ERA) Consultancy

Containment System Design & Assessment

  • Bund permeability testing and integrity surveys
  • Secondary and tertiary containment strategy development
  • Below-ground oil migration modelling
  • Bund capacity verification and topographic modelling
  • Heat transfer, ventilation and smoke movement analysis
Environmental Risk Assessment (ERA) Consultancy

Integration with COMAH Safety Reports

  • Source-pathway-receptor modelling for environmental risk
  • CDOIF-aligned consequence analysis for MATTE scenarios
  • ALARP justification and cost-benefit analysis
  • Predictive Climate Risk Assessment (PCRA) for future resilience
Environmental Risk Assessment (ERA) Consultancy

Containment System Design & Assessment

  • Bund permeability testing and integrity surveys
  • Secondary and tertiary containment strategy development
  • Below-ground oil migration modelling
  • Bund capacity verification and topographic modelling
  • Heat transfer, ventilation and smoke movement analysis
Environmental Risk Assessment (ERA) Consultancy

Integration with COMAH Safety Reports

  • Source-pathway-receptor modelling for environmental risk
  • CDOIF-aligned consequence analysis for MATTE scenarios
  • ALARP justification and cost-benefit analysis
  • Predictive Climate Risk Assessment (PCRA) for future resilience
Environmental Risk Assessment (ERA) Consultancy

Why Choose Arthian's Process Engineering team?

Engineering services delivered by specialists:

Integration

Fully integrated with geotechnical, hydrological, and ecological disciplines.

Our Experience

National experience with regional insight and regulatory familiarity.

Our Understanding

Deep understanding of planning, infrastructure, and environmental interfaces.

Results Driven

Commitment to technical rigour, clear communication, and long-term outcomes.

Frequently Asked Questions

Do I need firewater runoff modelling for COMAH?

Yes—firewater runoff can cause a Major Accident To The Environment (MATTE). Hydraulic modelling helps define containment volumes, flow paths and receptor risks.

What is tertiary containment?

Tertiary containment refers to systems that prevent off-site environmental impact if primary and secondary containment fail. Examples include sacrificial areas, lagoons and shut-off valves.

Can you model catastrophic tank failure?

Absolutely. We simulate dynamic fluid release, bund overtopping and structural impact using validated hydrodynamic models.

Do you assess bund integrity and capacity?

Yes—we offer bund permeability testing, capacity modelling, and structural appraisal aligned with CIRIA C736 and COMAH containment policy.

Get in Touch

We’d love to hear from you – whether you have a question, a project in mind, want to explore job opportunities, or just want to say hello.

Contact Us
Arthian Logo

Arthian is a trusted partner, working collaboratively to deliver client-focused solutions.

Join our newsletter

    hello@arthian.com
    +44 (0) 3301 200 151

    Office Locations

    • England
    • Ireland & Northern Ireland
    • Scotland
    • Wales
    Back to Top
    • Policies
    • HTML Sitemap

    LinkedIn

    © 2025 Arthian Ltd. All Rights Reserved | The name Arthian and the Arthian logo are Trade Marks licensed to Arthian Ltd. | 13 Henderson Road, Inverness, IV1 1SN. Registered in Scotland No. SC 163378

    Design & Build by Atomic Digital Marketing